產品概述
產品概述MC-II方型脈沖布袋除塵器是在MC-Ⅰ型的基礎上經改進修改而成的,它除了具有Ⅰ型除塵效率高、處理風量大、性能穩定、操作維修方便等特點外,還具有比I型使用效果好,不易積粉、應用范圍廣等特點,廣泛適用于糧食食品、飼料、冶金化工、建材、醫藥等行業的通風除塵…
400-822-0082
在線聯系

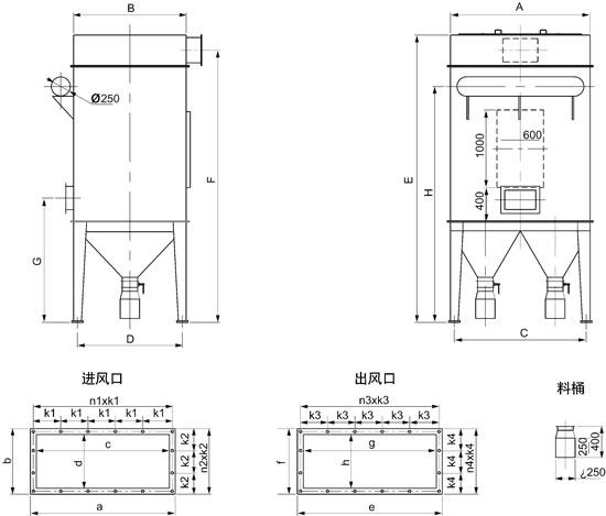
| 參數/型號 | MC24 | MC36 | MC48 | MC60 | MC72 | MC84 | MC96 | MC120 | |
| 過濾面積(m2) | 18 | 27 | 36 | 45 | 54 | 63 | 72 | 90 | |
| 濾袋數量(只) | 24 | 36 | 48 | 60 | 72 | 84 | 96 | 120 | |
| 過濾風速(L/m2.s) | 20-40 | 20-40 | 20-40 | 20-40 | 20-40 | 20-40 | 20-40 | 20-40 | |
| 過濾風量(m3/h) | 1300-2600 | 1950-3900 | 2600-5200 | 3240-6480 | 3900-7800 | 4550-9100 | 5200-10500 | 6500-13000 | |
| 外形尺寸 | 長 | 1000 | 1400 | 1800 | 2200 | 2600 | 3000 | 3560 | 4360 |
|
寬×高 |
1450×3700 | 1450×3850 | 1450×4100 | ||||||
| 清灰裝置 | 脈沖閥數量 | 4 | 6 | 8 | 10 | 12 | 14 | 16 | 20 |
| 耗用壓縮空氣量m3 |
0.07
-0.30
|
0.11
-0.40
|
0.15
-0.50
|
0.18
-0.60
|
0.22
-0.60
|
0.25
-0.90
|
0.29
-0.90
|
0.37
-0.90
|
|
| 壓縮空氣壓力(kg/cm2) | 5-7 | ||||||||
| 參數/型號 | MC24 | MC36 | MC48 | MC60 | MC72 | MC84 | MC96 | MC120 | |
| A | 1000 | 1400 | 1800 | 2200 | 2600 | 3000 | 3560 | 4360 | |
| B | 1450 | ||||||||
| C | 780 | 1180 | 1600 | 2000 | 2400 | 1400+1400 | 1670+1670 | 2080+2080 | |
| D | 1230 | ||||||||
| E | 3700 | 3850 | 4100 | ||||||
| F | 3500 | 3600 | 3850 | ||||||
| G | 1700 | 1750 | 2000 | ||||||
| H | 3040 | 3090 | 3300 | ||||||
| a | 476 | 576 | 876 | 876 | 1076 | 676 | 776 | 876 | |
| b | 336 | 376 | |||||||
| c | 400 | 500 | 800 | 800 | 1000 | 600×2 | 700×1 | 800×2 | |
| d | 260 | 300 300×2 | |||||||
| e | 576 | 576 | 876 | 876 | 1076 | 1276 | 1326 | 1436 | |
| f | 276 | 376 | |||||||
| g | 500 | 500 | 800 | 800 | 1000 | 1200 | 1250 | 1360 | |
| h | 200 | 300 | |||||||
|
k1×h1
k1×2
|
110×4
=440
|
108×5
=540
|
120×7
=840
|
120×7
=840
|
120×7+100×2
=1040
|
110×4+100×2
=640
|
110×5+95×2
=740
|
120×7
=840
|
|
| k2×n2 | 150×2=300 | 113.3×3=340 | |||||||
|
k3×n3
k3*2
|
108×5
=540
|
108×5
=540
|
120×7
=840
|
120×7
=840
|
120×7+
100×2
=1040
|
124×10
=1240
|
120×9+
105×2
=1290
|
120×10+
100×2
=1400
|
|
| k4*n4 | 120×2=240 | 113.3×3=340 | |||||||
| 排灰口蝶閥直徑 | 150 | 150 | 150 | 150 | 150 | 200 | 200 | 200 | |
上一篇:RLY系列燃油熱風爐
下一篇:SQR型散熱器
2025 年 5 月 21-23 日,第 92 屆中國國際醫藥原料藥 / 中間體 / 包裝 / 設備交易會(API China)將在廣州?中國進出口商品交易會…